Вентилятор радиальный ВЦ-14-46 общепромышленного исполнения
Описание
- Классические радиальные вентиляторы среднего давления
- Предназначены для общеобменной вентиляции
Конструктив
- Корпус в виде улитки из оцинкованной стали
- Углы поворота корпуса: 0°, 45°, 90°, 135°, 270°, 315°
- Левое (Л) или правое (Пр) направление вращения рабочего колеса/положение корпуса
- Тип рабочего колеса «РВ» с загнутыми вперед лопатками
- Рабочее колесо до 4,0 из оцинкованной стали, от 5,0 из углеродистой стали с покрытием
Двигатель
- Трехфазный асинхронный электродвигатель
- Степень защиты электродвигателя не ниже IP 54
Условия эксплуатации
- Климатическое исполнение по ГОСТ 15150-69: У2 (для эксплуатации под навесом). Допускается эксплуатация в У1 (на открытом воздухе) при комплектации кожухом электродвигателя или двигателем У1
- Температура окружающей среды от -45°С до +40°С
- Общепромышленное (О) исполнение
- Температура перемещаемой среды от -45°С до +80°С
- Перемещаемая среда не должна содержать:
- пары и газы с агрессивностью к металлам, покрытиям и изоляции выше агрессивности воздуха
Дополнительная комплектация

1 - Вставка гибкая круглая ВГК-ВР/ВЦ
2 - Вставка гибкая прямоугольная ВГП-ВР/ВЦ
3 - Козырёк защитный Козырек-ВР/ВЦ
4 - Решетка защитная БАСКЕТ-ВР/ВЦ
5 - Клапан вертикального выброса КВВ-ВР/ВЦ
6 - Кожух ЭД-ВР/ВЦ
7 - Виброизоляторы
* Дополнительные комплектующие в комплект поставки не входят.
Полная информация о вентиляторах ВЦ-14-46 в электронном pdf-каталоге по ссылке во вкладке "Характеристики".
Вентиляторы ВЦ-14-46 специального назначения можно посмотреть в соответствующем разделе.
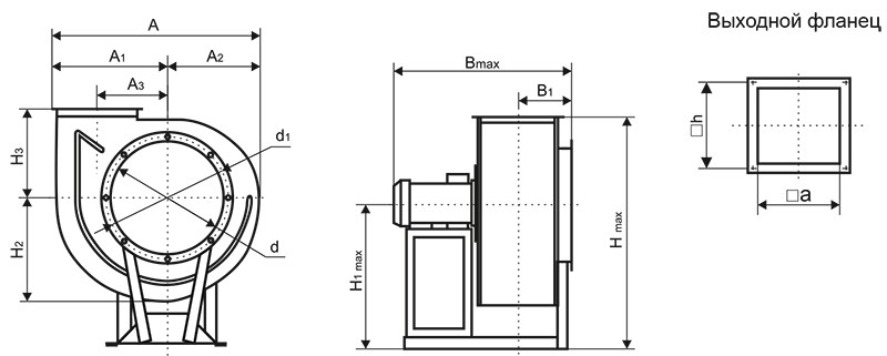
Габаритные и присоединительные размеры

|
№ вентилятора |
Габарит электродвигателя |
A* |
A1 |
A2 |
A3 |
B max |
B1 |
H** max |
H1 max |
H2 |
H3 |
d |
d1 |
a |
h |
|||||
|
0° |
45° |
90°, 270° |
135°, 315° |
0° |
45° |
90° |
||||||||||||||
|
ВЦ-14-46-2,0 |
56 |
373 |
329 |
349 |
442 |
220 |
153 |
130 |
454 |
160 |
454 |
558 |
500 |
282 |
177 |
172 |
213 |
235 |
140 |
161 |
|
63 |
373 |
329 |
349 |
442 |
220 |
153 |
130 |
462 |
160 |
462 |
566 |
508 |
290 |
177 |
172 |
213 |
235 |
140 |
161 |
|
|
71 |
373 |
329 |
349 |
442 |
220 |
153 |
130 |
475 |
160 |
470 |
574 |
516 |
299 |
177 |
172 |
213 |
235 |
140 |
161 |
|
|
80 |
373 |
329 |
349 |
442 |
220 |
153 |
130 |
513 |
160 |
479 |
583 |
583 |
308 |
177 |
172 |
213 |
235 |
140 |
161 |
|
|
ВЦ-14-46-2,5 |
71 |
460 |
410 |
424 |
539 |
270 |
189 |
163 |
518 |
177 |
524 |
655 |
591 |
321 |
224 |
203 |
250 |
289 |
175 |
194 |
|
90 |
460 |
410 |
424 |
539 |
270 |
189 |
163 |
585 |
177 |
543 |
674 |
610 |
340 |
224 |
203 |
250 |
289 |
175 |
194 |
|
|
100 |
460 |
410 |
424 |
539 |
270 |
189 |
163 |
607 |
177 |
553 |
684 |
620 |
350 |
224 |
203 |
250 |
289 |
175 |
194 |
|
|
112 |
460 |
436 |
424 |
539 |
270 |
189 |
163 |
631 |
177 |
565 |
695 |
631 |
362 |
224 |
203 |
250 |
289 |
175 |
194 |
|
|
ВЦ-14-46-3,15 |
71 |
572 |
516 |
520 |
666 |
333 |
240 |
205 |
560 |
202 |
655 |
800 |
726 |
411 |
278 |
244 |
315 |
349 |
220,5 |
240,5 |
|
80 |
572 |
516 |
520 |
666 |
333 |
240 |
205 |
605 |
202 |
663 |
809 |
735 |
420 |
278 |
244 |
315 |
349 |
220,5 |
240,5 |
|
|
90 |
572 |
516 |
520 |
666 |
333 |
240 |
205 |
641 |
202 |
663 |
819 |
745 |
430 |
278 |
244 |
315 |
349 |
220,5 |
240,5 |
|
|
100 |
572 |
516 |
520 |
666 |
333 |
240 |
205 |
673 |
202 |
673 |
829 |
755 |
440 |
278 |
244 |
315 |
349 |
220,5 |
240,5 |
|
|
ВЦ-14-46-4,0 |
80 |
721 |
656 |
650 |
834 |
420 |
301 |
260 |
660 |
232 |
780 |
990 |
906 |
486 |
358 |
297 |
400 |
434 |
280 |
300 |
|
90 |
721 |
656 |
650 |
834 |
420 |
301 |
260 |
691 |
232 |
793 |
1000 |
916 |
495 |
358 |
297 |
400 |
434 |
280 |
300 |
|
|
100 |
721 |
656 |
650 |
834 |
420 |
301 |
260 |
722 |
232 |
803 |
1010 |
926 |
506 |
358 |
297 |
400 |
434 |
280 |
300 |
|
|
112 |
721 |
656 |
650 |
834 |
420 |
301 |
260 |
775 |
232 |
815 |
1022 |
938 |
518 |
358 |
297 |
400 |
434 |
280 |
300 |
|
|
132 |
721 |
656 |
650 |
834 |
420 |
301 |
260 |
764 |
232 |
780 |
1042 |
958 |
538 |
358 |
297 |
400 |
434 |
280 |
300 |
|
|
ВЦ-14-46-5,0 |
100 |
896 |
818 |
798 |
1037 |
527 |
369 |
324 |
781 |
264 |
986 |
1127 |
1128 |
599 |
440 |
359 |
500 |
534 |
350 |
379 |
|
112 |
896 |
818 |
798 |
1037 |
527 |
369 |
324 |
799 |
264 |
972 |
1239 |
1140 |
612 |
440 |
359 |
500 |
534 |
350 |
379 |
|
|
132 |
896 |
818 |
798 |
1037 |
527 |
369 |
324 |
874 |
264 |
957 |
1258 |
1125 |
597 |
440 |
359 |
500 |
534 |
350 |
379 |
|
|
160 |
896 |
818 |
798 |
1037 |
527 |
369 |
324 |
949 |
264 |
984 |
1330 |
1230 |
625 |
440 |
359 |
500 |
534 |
350 |
379 |
|
|
180 |
896 |
818 |
798 |
1037 |
527 |
369 |
324 |
1034 |
264 |
1005 |
1306 |
1207 |
645 |
440 |
359 |
500 |
534 |
350 |
379 |
|
|
ВЦ-14-46-6,3 |
132 |
1133 |
1028 |
993 |
1290 |
657 |
476 |
410 |
1000 |
343 |
1168 |
1510 |
1391 |
734 |
554 |
441 |
630 |
665 |
441 |
470 |
|
160 |
1133 |
1028 |
993 |
1290 |
657 |
476 |
410 |
1127 |
343 |
1201 |
1538 |
1420 |
760 |
554 |
441 |
630 |
665 |
441 |
470 |
|
|
180 |
1133 |
1028 |
993 |
1290 |
657 |
476 |
410 |
1201 |
343 |
1166 |
1558 |
1439 |
780 |
554 |
441 |
630 |
665 |
441 |
470 |
|
|
200 |
1133 |
1028 |
993 |
1290 |
657 |
476 |
410 |
1231 |
343 |
1187 |
1588 |
1459 |
800 |
554 |
441 |
630 |
665 |
441 |
470 |
|
|
225 |
1133 |
1028 |
993 |
1290 |
657 |
476 |
410 |
1305 |
343 |
1265 |
1614 |
1484 |
825 |
554 |
441 |
630 |
665 |
441 |
470 |
|
* Размер, зависящий от положения корпуса вентилятора.
** Максимальная высота при различных положениях корпуса вентилятора (0°, 45°, 90°).
Габаритные размеры Bmax и H1max соответственно зависят от устанавливаемого двигателя. Габаритный размер Hmax зависит от положения корпуса и устанавливаемого двигателя.
Оборудование с большей производительностью и в больших типоразмерах представлено в разделах ВРН и ВРВ.
Габаритные и присоединительные размеры основания рамы вентиляторов ВЦ-14-46

|
№ вентилятора |
Габарит электродвигателя |
А |
В |
C |
D |
Е |
F |
K |
L |
M |
n |
|
ВЦ-14-46-2,0 |
56-80 |
365 |
202 |
226 |
- |
- |
20 |
90 |
30 |
8,5 |
8 |
|
ВЦ-14-46-2,5 |
71-112 |
418 |
292 |
316 |
- |
- |
20 |
90 |
30 |
8,5 |
8 |
|
ВЦ-14-46-3,15 |
71-100 |
445 |
254 |
278 |
- |
- |
20 |
90 |
30 |
9 |
8 |
|
ВЦ-14-46-4,0 |
80-112 |
570 |
290 |
314 |
- |
- |
20 |
163 |
30 |
8,5 |
8 |
|
132 |
711 |
399 |
433 |
- |
- |
20 |
163 |
30 |
8,5 |
8 |
|
|
ВЦ-14-46-5,0 |
100 |
730 |
385 |
435 |
10 |
240 |
100 |
240 |
- |
- |
6 |
|
112 |
700 |
385 |
435 |
10 |
240 |
100 |
240 |
- |
- |
6 |
|
|
132-180 |
846 |
430 |
505 |
10 |
283,5 |
179 |
283,5 |
- |
- |
6 |
|
|
ВЦ-14-46-6,3 |
132 |
850 |
486 |
546 |
10 |
325 |
100 |
325 |
- |
- |
6 |
|
160 |
850 |
486 |
546 |
10 |
325 |
100 |
325 |
- |
- |
6 |
|
|
180-225 |
1025 |
495 |
570 |
10 |
410,5 |
100 |
410,5 |
- |
- |
6 |
Технические характеристики
|
Наименование |
Габарит электродвигателя |
N, кВт |
n, об/мин |
Ток при 380В, А |
Масса max, кг |
Виброопора тип ЕС (А) |
|
|
Кол-во |
Тип |
||||||
|
ВЦ-14-46-2,0-О-РВ-0,12/1500/220-380 |
56 |
0,12 |
1310 |
0,49 |
13,9 |
4 |
20*25(А) М6 |
|
ВЦ-14-46-2,0-О-РВ-0,18/1500/220-380 |
56 |
0,18 |
1310 |
0,67 |
14,1 |
4 |
20*25(А) М6 |
|
ВЦ-14-46-2,0-О-РВ-0,25/1500/220-380 |
63 |
0,25 |
1340 |
0,87 |
15,5 |
4 |
20*25(А) М6 |
|
ВЦ-14-46-2,0-О-РВ-1,1/3000/220-380 |
71 |
1,1 |
2840 |
2,63 |
24,3 |
4 |
20*25(А) М6 |
|
ВЦ-14-46-2,0-О-РВ-1,5/3000/220-380 |
80 |
1,5 |
2850 |
3,46 |
24,9 |
4 |
20*25(А) М6 |
|
ВЦ-14-46-2,0-О-РВ-2,2/3000/220-380 |
80 |
2,2 |
2855 |
4,85 |
28,9 |
4 |
20*25(А) М6 |
|
ВЦ-14-46-2,5-О-РВ-0,55/1500/220-380 |
71 |
0,55 |
1390 |
1,66 |
22,5 |
4 |
20*25(А) М6 |
|
ВЦ-14-46-2,5-О-РВ-0,75/1500/220-380 |
71 |
0,75 |
1390 |
2,11 |
23,0 |
4 |
20*25(А) М6 |
|
ВЦ-14-46-2,5-О-РВ-3,0/3000/220-380 |
90 |
3,0 |
2860 |
6,35 |
34,0 |
4 |
20*25(А) М6 |
|
ВЦ-14-46-2,5-О-РВ-4,0/3000/220-380 |
100 |
4,0 |
2880 |
8,2 |
43,0 |
4 |
20*25(А) М6 |
|
ВЦ-14-46-2,5-О-РВ-5,5/3000/220-380 |
100 |
5,5 |
2900 |
11,1 |
49,5 |
4 |
20*20(А) М6 |
|
ВЦ-14-46-2,5-О-РВ-7,5/3000/220-380 |
112 |
7,5 |
2895 |
14,9 |
60,8 |
6 |
20*25(А) М6 |
|
ВЦ-14-46-3,15-О-РВ-0,37/1000/220-380 |
71 |
0,37 |
880 |
1,39 |
29,0 |
4 |
20*25(А) М6 |
|
ВЦ-14-46-3,15-О-РВ-0,55/1000/220-380 |
71 |
0,55 |
880 |
1,79 |
30,0 |
4 |
20*25(А) М6 |
|
ВЦ-14-46-3,15-О-РВ-0,75/1000/220-380 |
80 |
0,75 |
905 |
2,3 |
35,0 |
4 |
20*25(А) М6 |
|
ВЦ-14-46-3,15-О-РВ-1,1/1500/220-380 |
80 |
1,1 |
1390 |
2,85 |
34,3 |
4 |
20*25(А) М6 |
|
ВЦ-14-46-3,15-О-РВ-1,5/1500/220-380 |
80 |
1,5 |
1400 |
3,72 |
36,5 |
4 |
20*25(А) М6 |
|
ВЦ-14-46-3,15-О-РВ-2,2/1500/220-380 |
90 |
2,2 |
1410 |
5,3 |
51,5 |
4 |
20*20(А) М6 |
|
ВЦ-14-46-3,15-О-РВ-3,0/1500/220-380 |
100 |
3,0 |
1410 |
6,8 |
65,8 |
4 |
20*20(А) М6 |
|
ВЦ-14-46-4,0-О-РВ-0,37/750/220-380 |
80 |
0,37 |
675 |
1,64 |
44,4 |
4 |
20*20(А) М6 |
|
ВЦ-14-46-4,0-О-РВ-0,55/750/220-380 |
80 |
0,55 |
680 |
2,4 |
45,4 |
4 |
20*20(А) М6 |
|
ВЦ-14-46-4,0-О-РВ-0,75/750/220-380 |
90 |
0,75 |
680 |
2,43 |
50,4 |
4 |
20*20(А) М6 |
|
ВЦ-14-46-4,0-О-РВ-1,1/750/220-380 |
90 |
1,1 |
680 |
3,36 |
51,1 |
4 |
20*20(А) М6 |
|
ВЦ-14-46-4,0-О-РВ-0,75/1000/220-380 |
80 |
0,75 |
905 |
2,3 |
48,3 |
4 |
20*20(А) М6 |
|
ВЦ-14-46-4,0-О-РВ-1,1/1000/220-380 |
80 |
1,1 |
905 |
3,2 |
49,5 |
4 |
20*20(А) М6 |
|
ВЦ-14-46-4,0-О-РВ-1,5/1000/220-380 |
90 |
1,5 |
920 |
4,29 |
54,5 |
4 |
20*20(А) М6 |
|
ВЦ-14-46-4,0-О-РВ-2,2/1000/220-380 |
100 |
2,2 |
935 |
5,6 |
62,5 |
6 |
20*25(А) М6 |
|
ВЦ-14-46-4,0-О-РВ-3,0/1500/220-380 |
100 |
3,0 |
1410 |
6,8 |
53,7 |
6 |
20*20(А) М6 |
|
ВЦ-14-46-4,0-О-РВ-4,0/1500/220-380 |
100 |
4,0 |
1435 |
8,8 |
58,5 |
6 |
20*20(А) М6 |
|
ВЦ-14-46-4,0-О-РВ-5,5/1500/220-380 |
112 |
5,5 |
1440 |
11,7 |
89 |
6 |
25*30(А) М6 |
|
ВЦ-14-46-4,0-О-РВ-7,5/1500/380-660 |
132 |
7,5 |
1450 |
15,71 |
93,5 |
6 |
25*30(А) М6 |
|
ВЦ-14-46-5,0-О-РВ-1,5/750/220-380 |
100 |
1,5 |
690 |
4,4 |
87,7 |
6 |
25*30(А) М6 |
|
ВЦ-14-46-5,0-О-РВ-2,2/750/220-380 |
112 |
2,2 |
710 |
6,16 |
89,2 |
6 |
25*30(А) М6 |
|
ВЦ-14-46-5,0-О-РВ-3,0/750/220-380 |
112 |
3,0 |
710 |
8,15 |
89,7 |
6 |
25*30(А) М6 |
|
ВЦ-14-46-5,0-О-РВ-4,0/750/380-660 |
132 |
4,0 |
720 |
10,47 |
131,2 |
6 |
25*20(А) М6 |
|
ВЦ-14-46-5,0-О-РВ-4,0/1000/220-380 |
112 |
4,0 |
960 |
9,75 |
111 |
6 |
25*30(А) М6 |
|
ВЦ-14-46-5,0-О-РВ-5,5/1000/380-660 |
132 |
5,5 |
960 |
12,9 |
130 |
6 |
25*20(А) М6 |
|
ВЦ-14-46-5,0-О-РВ-7,5/1000/380-660 |
132 |
7,5 |
970 |
17,2 |
147 |
6 |
30*30(А) М8 |
|
ВЦ-14-46-5,0-О-РВ-11,0/1000/380-660 |
160 |
11,0 |
970 |
24,5 |
183 |
6 |
30*30(А) М8 |
|
ВЦ-14-46-5,0-О-РВ-15,0/1500/380-660 |
160 |
15,0 |
1460 |
30 |
200 |
6 |
30*30(А) М8 |
|
ВЦ-14-46-5,0-О-РВ-18,5/1500/380-660 |
160 |
18,5 |
1470 |
36,3 |
218 |
6 |
40*40(А) М8 |
|
ВЦ-14-46-5,0-О-РВ-22,0/1500/380-660 |
180 |
22,0 |
1470 |
43,2 |
243 |
6 |
40*40(А) М8 |
|
ВЦ-14-46-5,0-О-РВ-30,0/1500/380-660 |
180 |
30,0 |
1470 |
57,6 |
249 |
6 |
40*40(А) М8 |
|
ВЦ-14-46-6,3-О-РВ-5,5/750/380-660 |
132 |
5,5 |
720 |
13,83 |
194 |
6 |
30*30(А) М8 |
|
ВЦ-14-46-6,3-О-РВ-7,5/750/380-660 |
160 |
7,5 |
720 |
18,17 |
238 |
6 |
25*10(А) М6 |
|
ВЦ-14-46-6,3-О-РВ-11,0/750/380-660 |
160 |
11,0 |
730 |
26 |
258 |
6 |
40*40(А) М8 |
|
ВЦ-14-46-6,3-О-РВ-15,0/750/380-660 |
180 |
15,0 |
730 |
35 |
288 |
6 |
50*50(А) М10 |
|
ВЦ-14-46-6,3-О-РВ-11,0/1000/380-660 |
160 |
11,0 |
970 |
24,5 |
240 |
6 |
25*10(А) М6 |
|
ВЦ-14-46-6,3-О-РВ-15,0/1000/380-660 |
160 |
15,0 |
970 |
31,6 |
285 |
6 |
25*10(А) М6 |
|
ВЦ-14-46-6,3-О-РВ-18,5/1000/380-660 |
180 |
18,5 |
980 |
38,6 |
226 |
6 |
25*10(А) М6 |
|
ВЦ-14-46-6,3-О-РВ-22,0/1000/380-660 |
200 |
22,0 |
980 |
44,7 |
226 |
6 |
25*10(А) М6 |
|
ВЦ-14-46-6,3-О-РВ-30,0/1000/380-660 |
200 |
30,0 |
980 |
60 |
339 |
6 |
50*50(А) М10 |
|
ВЦ-14-46-6,3-О-РВ-37,0/1000/380-660 |
225 |
37,0 |
980 |
71 |
384 |
6 |
50*50(А) М10 |
Шумовые характеристики
|
Наименование |
Уровень звуковой мощности, дБ в октавных полосах частот, Гц |
Общий, дБа |
||||||
|
125 |
250 |
500 |
1000 |
2000 |
4000 |
8000 |
||
|
ВЦ-14-46-2,0-О-РВ-0,12/1500/220-380 |
71 |
74 |
68 |
67 |
63 |
55 |
50 |
77 |
|
ВЦ-14-46-2,0-О-РВ-0,18/1500/220-380 |
71 |
74 |
68 |
67 |
63 |
55 |
50 |
77 |
|
ВЦ-14-46-2,0-О-РВ-0,25/1500/220-380 |
71 |
74 |
68 |
67 |
63 |
55 |
50 |
77 |
|
ВЦ-14-46-2,0-О-РВ-1,1/3000/220-380 |
91 |
94 |
88 |
87 |
83 |
75 |
70 |
97 |
|
ВЦ-14-46-2,0-О-РВ-1,5/3000/220-380 |
91 |
94 |
88 |
87 |
83 |
75 |
70 |
97 |
|
ВЦ-14-46-2,0-О-РВ-2,2/3000/220-380 |
91 |
94 |
88 |
87 |
83 |
75 |
70 |
97 |
|
ВЦ-14-46-2,5-О-РВ-0,55/1500/220-380 |
80 |
82 |
77 |
76 |
72 |
63 |
59 |
85 |
|
ВЦ-14-46-2,5-О-РВ-0,75/1500/220-380 |
80 |
82 |
77 |
76 |
72 |
63 |
59 |
85 |
|
ВЦ-14-46-2,5-О-РВ-3,0/3000/220-380 |
98 |
100 |
95 |
94 |
90 |
81 |
77 |
103 |
|
ВЦ-14-46-2,5-О-РВ-4,0/3000/220-380 |
98 |
100 |
95 |
94 |
90 |
81 |
77 |
103 |
|
ВЦ-14-46-2,5-О-РВ-5,5/3000/220-380 |
98 |
100 |
95 |
94 |
90 |
81 |
77 |
103 |
|
ВЦ-14-46-2,5-О-РВ-7,5/3000/220-380 |
98 |
100 |
95 |
94 |
90 |
81 |
77 |
103 |
|
ВЦ-14-46-3,15-О-РВ-0,37/1000/220-380 |
78 |
81 |
75 |
74 |
70 |
62 |
57 |
84 |
|
ВЦ-14-46-3,15-О-РВ-0,55/1000/220-380 |
78 |
81 |
75 |
74 |
70 |
62 |
57 |
84 |
|
ВЦ-14-46-3,15-О-РВ-0,75/1000/220-380 |
78 |
81 |
75 |
74 |
70 |
62 |
57 |
84 |
|
ВЦ-14-46-3,15-О-РВ-1,1/1500/220-380 |
90 |
92 |
87 |
86 |
82 |
73 |
69 |
95 |
|
ВЦ-14-46-3,15-О-РВ-1,5/1500/220-380 |
90 |
92 |
87 |
86 |
82 |
73 |
69 |
95 |
|
ВЦ-14-46-3,15-О-РВ-2,2/1500/220-380 |
90 |
92 |
87 |
86 |
82 |
73 |
69 |
95 |
|
ВЦ-14-46-3,15-О-РВ-3,0/1500/220-380 |
90 |
92 |
87 |
86 |
82 |
73 |
69 |
95 |
|
ВЦ-14-46-4,0-О-РВ-0,37/750/220-380 |
79 |
82 |
76 |
75 |
71 |
63 |
58 |
85 |
|
ВЦ-14-46-4,0-О-РВ-0,55/750/220-380 |
79 |
82 |
76 |
75 |
71 |
63 |
58 |
85 |
|
ВЦ-14-46-4,0-О-РВ-0,75/750/220-380 |
79 |
82 |
76 |
75 |
71 |
63 |
58 |
85 |
|
ВЦ-14-46-4,0-О-РВ-1,1/750/220-380 |
79 |
82 |
76 |
75 |
71 |
63 |
58 |
85 |
|
ВЦ-14-46-4,0-О-РВ-0,75/1000/220-380 |
86 |
88 |
83 |
82 |
78 |
69 |
65 |
91 |
|
ВЦ-14-46-4,0-О-РВ-1,1/1000/220-380 |
86 |
88 |
83 |
82 |
78 |
69 |
65 |
91 |
|
ВЦ-14-46-4,0-О-РВ-1,5/1000/220-380 |
86 |
88 |
83 |
82 |
78 |
69 |
65 |
91 |
|
ВЦ-14-46-4,0-О-РВ-2,2/1000/220-380 |
86 |
88 |
83 |
82 |
78 |
69 |
65 |
91 |
|
ВЦ-14-46-4,0-О-РВ-3,0/1500/220-380 |
97 |
100 |
94 |
93 |
89 |
81 |
76 |
103 |
|
ВЦ-14-46-4,0-О-РВ-4,0/1500/220-380 |
97 |
100 |
94 |
93 |
89 |
81 |
76 |
103 |
|
ВЦ-14-46-4,0-О-РВ-5,5/1500/220-380 |
97 |
100 |
94 |
93 |
89 |
81 |
76 |
103 |
|
ВЦ-14-46-4,0-О-РВ-7,5/1500/380-660 |
97 |
100 |
94 |
93 |
89 |
81 |
76 |
103 |
|
ВЦ-14-46-5,0-О-РВ-1,5/750/220-380 |
88 |
91 |
85 |
84 |
80 |
72 |
67 |
94 |
|
ВЦ-14-46-5,0-О-РВ-2,2/750/220-380 |
88 |
91 |
85 |
84 |
80 |
72 |
67 |
94 |
|
ВЦ-14-46-5,0-О-РВ-3,0/750/220-380 |
88 |
91 |
85 |
84 |
80 |
72 |
67 |
94 |
|
ВЦ-14-46-5,0-О-РВ-4,0/750/380-660 |
88 |
91 |
85 |
84 |
80 |
72 |
67 |
94 |
|
ВЦ-14-46-5,0-О-РВ-4,0/1000/220-380 |
95 |
97 |
92 |
91 |
87 |
78 |
74 |
100 |
|
ВЦ-14-46-5,0-О-РВ-5,5/1000/380-660 |
95 |
97 |
92 |
91 |
87 |
78 |
74 |
100 |
|
ВЦ-14-46-5,0-О-РВ-7,5/1000/380-660 |
95 |
97 |
92 |
91 |
87 |
78 |
74 |
100 |
|
ВЦ-14-46-5,0-О-РВ-11,0/1000/380-660 |
95 |
97 |
92 |
91 |
87 |
78 |
74 |
100 |
|
ВЦ-14-46-5,0-О-РВ-15,0/1500/380-660 |
106 |
109 |
103 |
102 |
98 |
90 |
85 |
112 |
|
ВЦ-14-46-5,0-О-РВ-18,5/1500/380-660 |
106 |
109 |
103 |
102 |
98 |
90 |
85 |
112 |
|
ВЦ-14-46-5,0-О-РВ-22,0/1500/380-660 |
106 |
109 |
103 |
102 |
98 |
90 |
85 |
112 |
|
ВЦ-14-46-5,0-О-РВ-30,0/1500/380-660 |
106 |
109 |
103 |
102 |
98 |
90 |
85 |
112 |
|
ВЦ-14-46-6,3-О-РВ-5,5/750/380-660 |
84 |
87 |
90 |
84 |
84 |
80 |
74 |
71 |
|
ВЦ-14-46-6,3-О-РВ-7,5/750/380-660 |
84 |
87 |
90 |
84 |
84 |
80 |
74 |
71 |
|
ВЦ-14-46-6,3-О-РВ-11,0/750/380-660 |
84 |
87 |
90 |
84 |
84 |
80 |
74 |
71 |
|
ВЦ-14-46-6,3-О-РВ-15,0/750/380-660 |
84 |
87 |
90 |
84 |
84 |
80 |
74 |
71 |
|
ВЦ-14-46-6,3-О-РВ-11,0/1000/380-660 |
92 |
95 |
97 |
92 |
92 |
88 |
82 |
79 |
|
ВЦ-14-46-6,3-О-РВ-15,0/1000/380-660 |
92 |
95 |
97 |
92 |
92 |
88 |
82 |
79 |
|
ВЦ-14-46-6,3-О-РВ-18,5/1000/380-660 |
92 |
95 |
97 |
92 |
92 |
88 |
82 |
79 |
|
ВЦ-14-46-6,3-О-РВ-22,0/1000/380-660 |
92 |
95 |
97 |
92 |
92 |
88 |
82 |
79 |
|
ВЦ-14-46-6,3-О-РВ-30,0/1000/380-660 |
92 |
95 |
97 |
92 |
92 |
88 |
82 |
79 |
|
ВЦ-14-46-6,3-О-РВ-37,0/1000/380-660 |
92 |
95 |
97 |
92 |
92 |
88 |
82 |
79 |
Электрические схемы подключения вентиляторов в сеть 380 В

* В вентиляторах с номинальным напряжением ∆/Y 380В/660В предусмотрена возможность запуска пониженным напряжением по схеме Y-∆. Для получения более подробной информации по подключению, обратитесь в отдел технической поддержки.
Не представленные в наличии модели доступны к поставке под заказ
Всю необходимую информацию также можно получить по телефону «горячей линии»
+ 7 800 200 93 96или по телефону
+7 800 505 08 67 получить консультацию
